Casas Modulares entre medianeras, Modelo Girona, 116,80 m² y 25,68 m², Porche-Garaje, Precio En Oferta

  • Precios A Consultar En Ofertas

Descripción general

ID de la Vivienda: Modelo Girona 145,60m2
  • Casas Modernas, Casas Tradicionales, Vivienda destacada
  • Tipo de vivienda
  • 3
  • Habitaciones
  • 3
  • Baños
  • 1
  • Garaje
  • 145,60m2

Descripción

 Casas Modulares entre medianeras, Modelo Girona, 116,80 m² y 25,68 m², Porche-Garaje, Precio En Oferta

Construimos casas prefabricadas a medidas a un precio razonable y con facilidades de pagos.

Somos Constructoras de casas a medida estilo moderno o tradicional conforme a la Normativa.

Casas Eco viene con casas modulares prefabricadas, modernas y tradicionales para tu proyecto. Nuestras casas prefabricadas, personalizadas, modernas o tradicionales en estructura de madera prefabricada, y totalmente ecológicas.

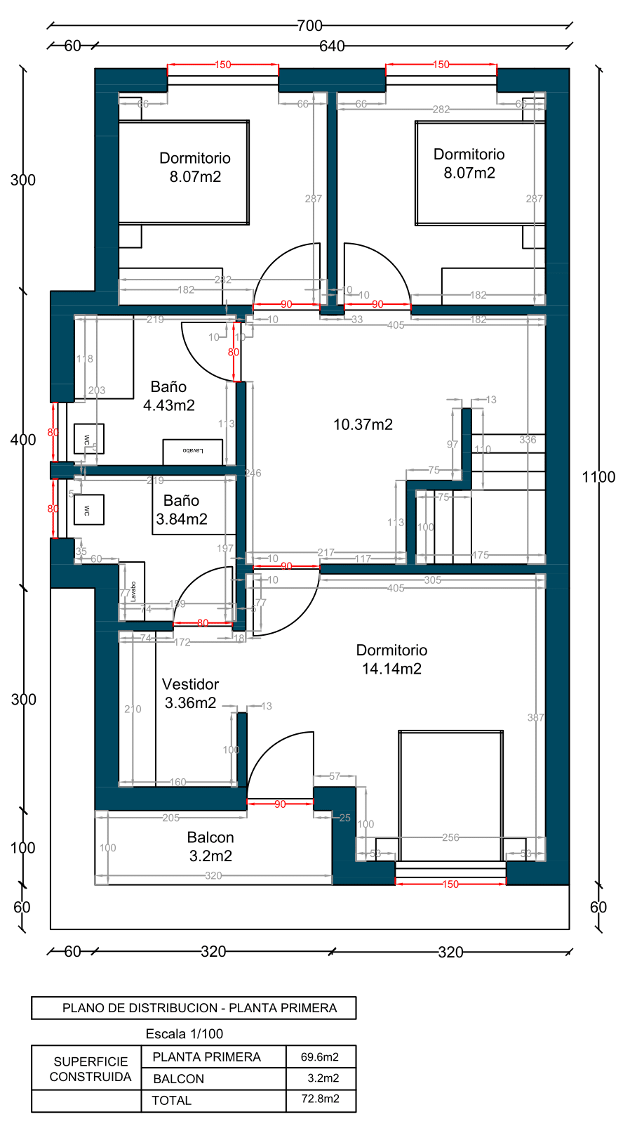
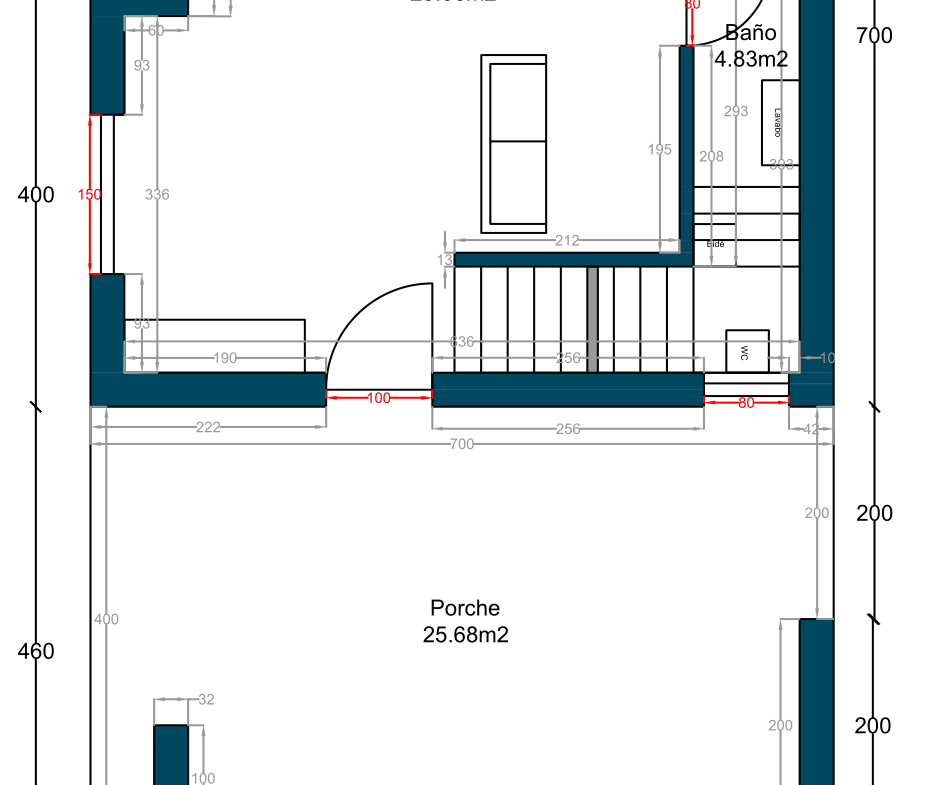
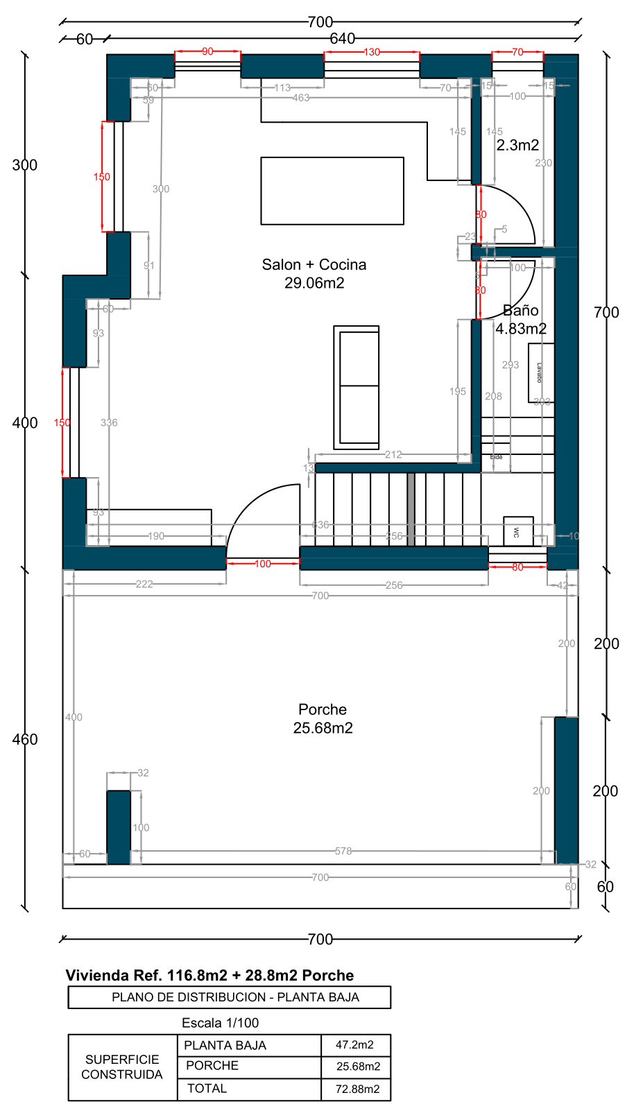
• Distribución: Salón, Cocina, 3 Dormitorios,1 Vestidor, 3 baños,1 Lavandería, 1 Balcón
• Superficie total Construida 116.80 m² + 25,68 m² Porche-Garaje

En nuestros modelos de casas prefabricadas, modernas o tradicionales, podrá encontrar el diseño que se ajusta a sus necesidades o simplemente le podrá inspirar a crear su propio diseño. Enviándonos a nuestro correo un dibujo o un plano, y nuestro equipo técnico diseñará tu proyecto a medida o bien adecuar a su gusto nuestros modelos existentes en la página web, hacerle más grande o pequeño en cuanto a tamaño, adaptándonos a cualquier tipo de fachada. Eligiendo techo inclinado o techo moderno plano.

El resultado es que usted y su familia tengan una Casa Completamente Ecológica y Eficiente en el consumo y ahorro de Energía, con paredes exteriores desde 32 cm que incluye diferentes componentes, carpintería de PVC triple cristal.

Para más información respecto a la calidad constructiva, consulte nuestra página

SISTEMA CONSTRUCTIVO EXCLUSIVO EFICIENTE Y ECOLÓGICO

• El precio indicado de nuestras casas prefabricadas modernas o tradicionales incluye todos los trabajos de acabado, según descripción de la construcción de casas prefabricadas pasivas.
• Lo que no está incluido en el precio indicado es la realización de la licencia de obras, el transporte, cimentación. “Al solicitar un presupuesto, sabremos la ubicación de la parcela, con esta información, todos los gastos relacionados con el transporte y el alquiler del alojamiento de los técnicos estarán INCLUIDOS en el presupuesto.” Presupuestos sin compromiso para la construcción de sus casas modernas o sus casas prefabricadas en estructura de madera cubierta, plana o tradicional, Cumple con la normativa de casas prefabricadas Pasiva y ecológicas.

El acabado exterior del edificio será de su elección, servicio que está incluido.
• Revestimiento monocapa, color de su elección para un acabado tradicional.
• Revestimiento de madera para un aspecto rústico.

Como también se puede entregar con revestimiento de placa de piedra, para darle un toque rústico a elección del cliente, esta terminación está sujeta a presupuesto y aprobación del cliente.

Para más información respecto a la calidad constructiva, consulte nuestra página

 Como Construimos Paso a Paso

 Acabado interior ya sea: revestimiento de panel yeso o madera.
Diseño de planos y presupuestos gratuitos para la construcción de su vivienda moderna o tradicional.

En nuestro sitio web, www.casaseco.es encontrará información constantemente actualizada y nuevos productos, catálogo y precios de casas prefabricadas modernas y tradicionales ecológicas, que cumplen con los criterios de casas pasivos prefabricadas. En nuestro catálogo encontrarás precio de casas prefabricadas, casas modernas y casas tradicionales, ecológicas y baratas, calidad, precio que cumplen con los criterios de casas pasivas, prefabricadas, Somos Constructoras de casas pasivas en estructura de madera. Nuestras Viviendas Modernas y casas tradicionales de alta calidad, estilo rústico en estructuras prefabricadas de madera que cumple con la normativa bajo energético. Nuestras casas de madera son ecológicas y personalizables, Casas Eco viene con estructuras de madera ecológicas, moderna con techo plano o mampostería tradicional, casas prefabricadas con estructura de madera o casas rústicas, casas modulares para vivir en una vivienda de madera de alta calidad, con total tranquilidad y preguntas frecuentes.

Comparar listados

Comparar
casas eco
  • casas eco