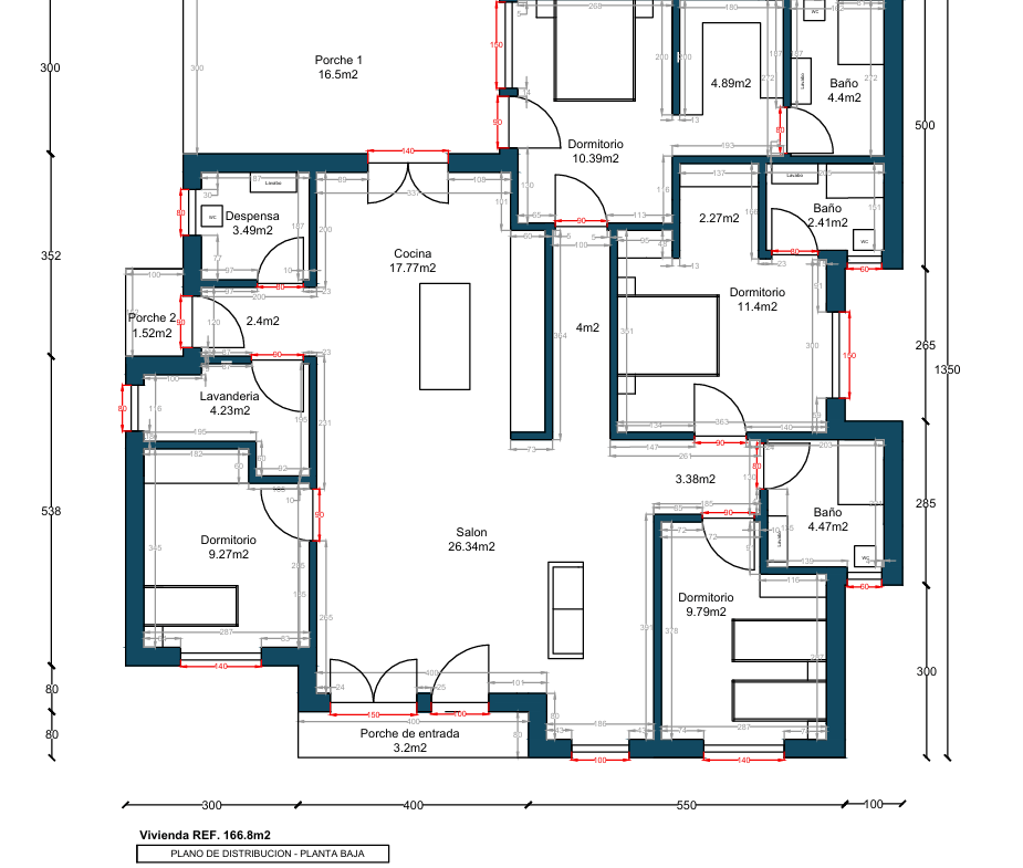
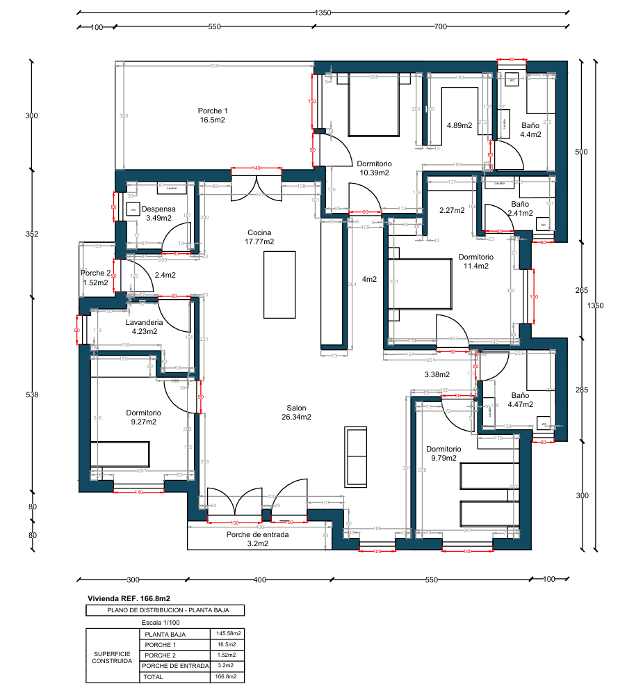
Casas Prefabricadas A Medidas, Modelo Español 166,80 m² Desde 184.761 € IVA Incluido
Casas Eco viene con casas modulares a medias para tu proyecto. Nuestras casas prefabricadas, personalizadas, modernas o tradicionales, son casas de madera prefabricada mixta que cumple a la Normativa de casas pasivas.
• Distribución: Salón, Cocina, 4 Dormitorios,3 baños,2 Vestidores, 1 Lavandería,1 Despensa, 3 Porches
• Superficie total Construida 166.80 m²
En nuestros modelos de viviendas prefabricadas, modernas o tradicionales podrá encontrar el diseño que se ajusta a sus necesidades. O simplemente le podrá inspirar a crear su propio diseño, enviándonos a nuestro correo un dibujo o un plano, y nuestro equipo técnico diseñará tu proyecto a medida o bien adecuar a su gusto nuestros modelos existentes en la página web, hacerle más grande o pequeño en cuanto a tamaño, adaptándonos a cualquier tipo de fachada. Eligiendo techo inclinado o techo moderno plano.
El resultado es que usted y su familia tengan una Casa Completamente Ecológica y Eficiente en el consumo y ahorro de Energía, con paredes exteriores desde 32 cm, que incluye diferentes componentes, carpintería PVC triple cristal, perfil 92 mm,7 cámaras.
Para más información respecto a la calidad constructiva, consulte nuestra página:
SISTEMA CONSTRUCTIVO EXCLUSIVO EFICIENTE Y ECOLÓGICO
• El precio indicado de nuestras casas prefabricadas modernas o tradicionales incluye todos los trabajos de acabado, interior y exterior, según descripción de la construcción de casas prefabricadas pasivas.
• Lo que no está incluido en el precio indicado es la realización de la licencia de obras, la cimentación. Presupuestos sin compromiso para la construcción de sus casas modernas o sus casas prefabricadas en estructura de madera cubierta, plana o tradicional, Cumple con la normativa de casas prefabricadas pasiva y ecológicas.
El acabado exterior del edificio será de su elección, servicio que está incluido.
• Revestimiento monocapa, color de su elección para un acabado tradicional.
• Revestimiento de madera para un aspecto rústico.
Como también se puede entregar con revestimiento de placa de piedra, para darle un toque rústico a elección del cliente, esta terminación está sujeta a presupuesto y aprobación del cliente.
Para más información respecto a la calidad constructiva, consulte nuestra página:
Acabado interior ya sea: revestimiento de panel yeso o madera.
Diseño de planos y presupuestos gratuitos para la construcción de su vivienda moderna o tradicional.
En nuestro sitio web, www.casaseco.es encontrará información constantemente actualizada y nuevos productos, catálogo y precios de casas prefabricadas modernas y tradicionales ecológicas, que cumplen con los criterios de casas pasivos prefabricadas. En nuestro catálogo encontrarás precio de casas prefabricadas, casas modernas y casas tradicionales, ecológicas y baratas, calidad, precio que cumplen con los criterios de casas pasivas, prefabricadas, Somos Constructoras de casas pasivas en estructura de madera. Nuestras Viviendas Modernas y casas tradicionales de alta calidad, estilo rústico en estructuras prefabricadas de madera que cumple con la normativa bajo energético. Nuestras casas de madera son ecológicas y personalizables, Casas Eco viene con estructuras de madera ecológicas, moderna con techo plano o mampostería tradicional, casas prefabricadas con estructura de madera o casas rústicas, casas modulares para vivir en una vivienda de madera de alta calidad, con total tranquilidad y preguntas frecuentes. Somos Constructoras de casas modulares a medida estilo moderno o tradicional conforme a la Normativa.