Casas prefabricadas rústicas, Modelo Cantabria 152,50 m², Precios En Ofertas, A Consultar

  • Precios En Ofertas, A Consultar

Descripción general

ID de la Vivienda: Casas prefabricadas rústicas, Modelo Cantabria 152,50 m²
  • Casas Tradicionales, Vivienda destacada
  • Tipo de vivienda
  • 2
  • Habitaciones
  • 2
  • Baños
  • 1
  • Garaje
  • 152,50m2

Descripción

Casas prefabricadas rústicas, Modelo Cantabria 152,50 m², Precios En Ofertas, A Consultar

Constructora de casas rústicas y chales a medidas a un precio razonable y con facilidades de pagos.

Casas Eco viene con casas en aspecto rústico al exterior y moderno al interior, chalés prefabricados a medias para tu proyecto. Nuestras casas modulares, personalizadas, modernas o tradicionales, son casas prefabricadas, mixta, que cumple a la Normativa de casas pasivas.

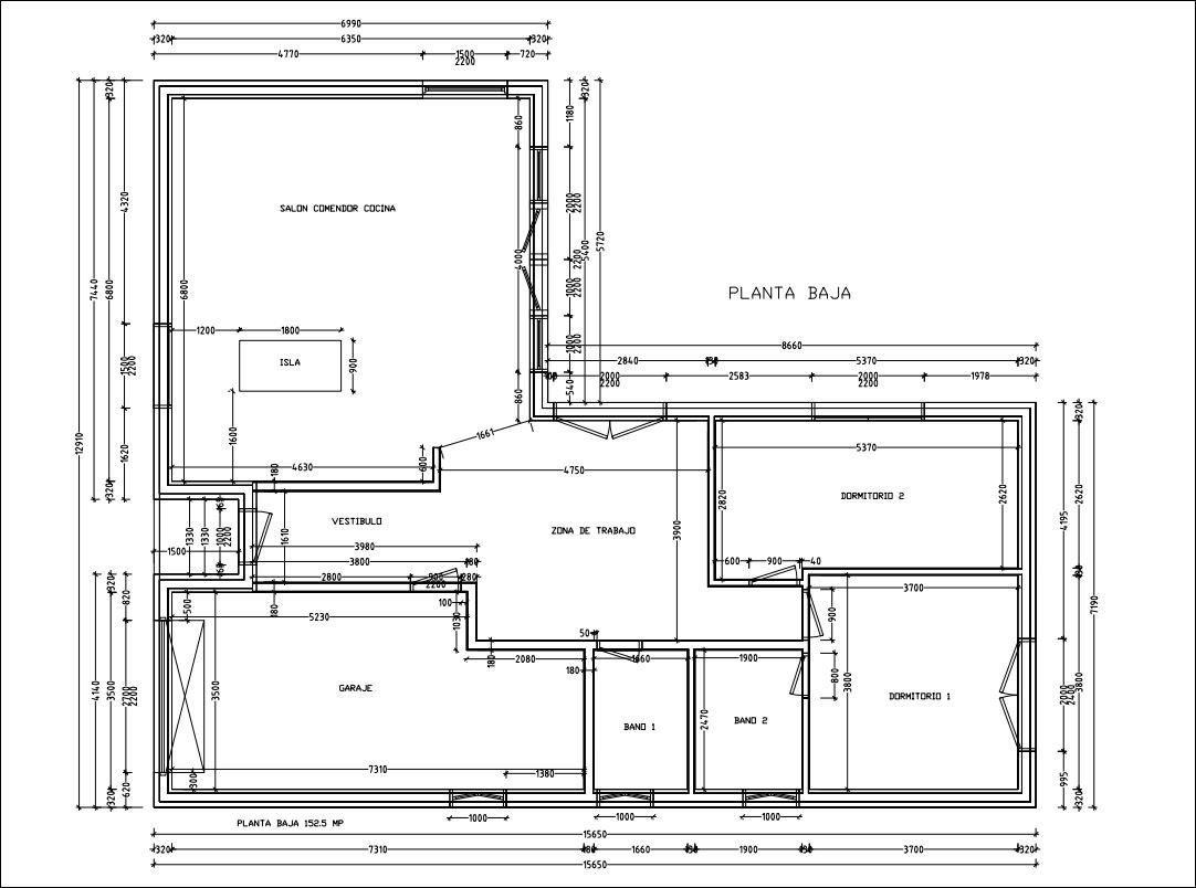
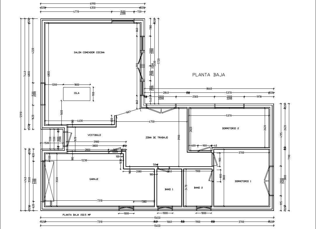
• Distribución: Salón, Cocina, 2 Dormitorios,2 baños, 1 Vestíbulo, 1 Garaje espacioso con zona de Lavandería, espacio técnico, 1 Porche de entrada
• Superficie total Construida 152.50 m²

En nuestros modelos de viviendas prefabricadas, modernas o tradicionales podrá encontrar el diseño que se ajusta a sus necesidades. O simplemente le podrá inspirar a crear su propio diseño, enviándonos a nuestro correo un dibujo o un plano, y nuestro equipo técnico diseñará tu proyecto a medida o bien adecuar a su gusto nuestros modelos existentes en la página web, hacerle más grande o pequeño en cuanto a tamaño, adaptándonos a cualquier tipo de fachada. Eligiendo techo inclinado o techo moderno plano.

El resultado es que usted y su familia tengan una Casa Completamente Ecológica y Eficiente en el consumo y ahorro de Energía, con paredes exteriores desde 32 cm, que incluye diferentes componentes, carpintería PVC triple cristal, perfil 92 mm,7 cámaras.

Para más información respecto a la calidad constructiva, consulte nuestra página

SISTEMA CONSTRUCTIVO EXCLUSIVO EFICIENTE Y ECOLÓGICO

• El precio indicado de nuestras casas prefabricadas modernas o tradicionales incluye todos los trabajos de acabado, interior y exterior, según descripción de la construcción de casas prefabricadas pasivas.
• Lo que no está incluido en el precio indicado es la realización de la licencia de obras, la cimentación. Presupuestos sin compromiso para la construcción de sus casas modernas o sus casas prefabricadas en estructura de madera cubierta, plana o tradicional, Cumple con la normativa de casas prefabricadas pasiva y ecológicas.

El acabado exterior del edificio será de su elección, servicio que está incluido.
• Revestimiento monocapa, color de su elección para un acabado tradicional.
• Revestimiento de madera para un aspecto rústico.

Como también se puede entregar con revestimiento de placa de piedra, para darle un toque rústico a elección del cliente, esta terminación está sujeta a presupuesto y aprobación del cliente.

Para más información respecto a la calidad constructiva, consulte nuestra página

 Como Construimos Paso a Paso

 Acabado interior ya sea: revestimiento de panel yeso o madera.
Diseño de planos y presupuestos gratuitos para la construcción de su vivienda moderna o tradicional.

En nuestro sitio web, www.casaseco.es encontrará información constantemente actualizada y nuevos productos, catálogo y precios de casas prefabricadas modernas y tradicionales ecológicas, que cumplen con los criterios de casas pasivos prefabricadas. En nuestro catálogo encontrarás precio de casas prefabricadas, casas modernas y casas tradicionales, ecológicas y baratas, calidad, precio que cumplen con los criterios de casas pasivas, prefabricadas, Somos Constructoras de casas pasivas en estructura de madera. Nuestras Viviendas Modernas y casas tradicionales de alta calidad, estilo rústico en estructuras prefabricadas de madera que cumple con la normativa bajo energético. Nuestras casas de madera son ecológicas y personalizables, Casas Eco viene con estructuras de madera ecológicas, moderna con techo plano o mampostería tradicional, casas prefabricadas con estructura de madera o casas rústicas, casas modulares para vivir en una vivienda de madera de alta calidad, con total tranquilidad y preguntas frecuentes. Somos Constructoras de casas prefabricadas a medida estilo moderno o tradicional conforme a la Normativa.

Comparar listados

Comparar
casas eco
  • casas eco